Bar LIT
Bar LIT
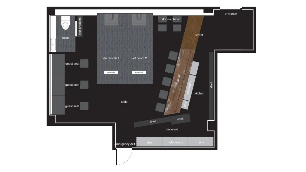
京都市・木屋町のダーツバー「Bar・LIT」の空間デザイン
京都市・木屋町に新たにオープンしたダーツバー「Bar LIT」の空間デザインを担当。
一般的なダーツバーが持つ「賑やかでワイワイと盛り上がる」イメージとは一線を画し、Bar・LITは“大人が静かに愉しめる”落ち着いた空間をコンセプトに。
店内は間接照明とシックなマテリアルを基調に、バーとしての上質さを際立たせながらも、ダーツ台を配置。
会話とお酒をメインに楽しみつつ、気が向いたときにふとダーツを楽しむ、そんな自然な流れを生み出す空間を目指した。
「遊び」も「寛ぎ」も叶える、大人のためのBAR空間に。
" Bar LIT Interior Design"
We were in charge of the interior design for Bar LIT, a newly opened darts bar located in the Kiyamachi area of Kyoto.
Unlike the typical image of a lively, energetic darts bar, Bar LIT offers a calm and refined atmosphere tailored for adults.
With a focus on quality time and conversation, the space features a sophisticated bar counter where guests can enjoy a quiet drink. Dartboards are subtly integrated into the environment, allowing patrons to casually enjoy a game without disrupting the relaxed mood.
Our design aims to create a space where “play” and “relaxation” coexist—a stylish bar for grown-ups who appreciate both.
Cliant
BAR LIT 様
Space Design Kento Kaneda


